
DIRIGINTE DE ȘANTIER – CONSTRUIRE 3 LOCUINTE P+1E – CORBEANCA
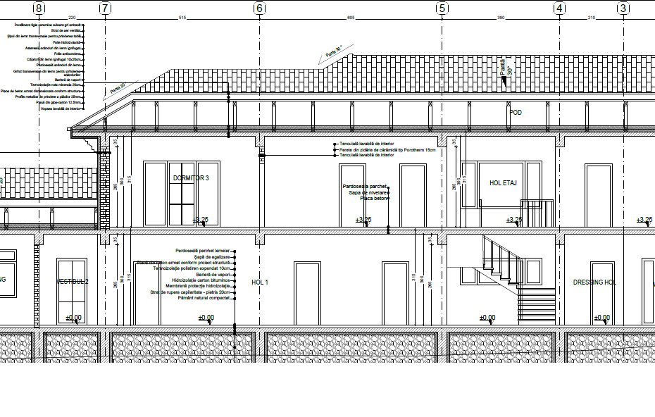
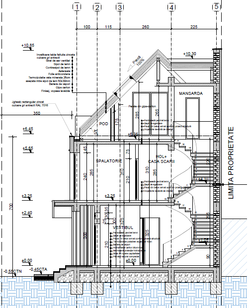
STRUCTURA DE REZISTENTA. Forma in plan a locuintei se poate incadra intr-un dreptunghi avand laturile 10.80m x 15.05m. Inaltimea de nivel este de 3.40m la parter si la etaj 3.20. Cota ±0.00 a cladirii este… Citește mai mult »DIRIGINTE DE ȘANTIER – CONSTRUIRE 3 LOCUINTE P+1E – CORBEANCA







